嵐山町に新しいモデルハウスがオープン

15,000円分の
クオカード
プレゼント

※見学会会場で5,000円+家づくり相談5,000円+次回来場時5,000円

    LIVING

     生活動線に合わせて適材適所に収納を配置。必要な場所に必要な収納で自然と片付く暮らしを実現。

     家の中心にあり自然と家族が集まる場所。リビングから各部屋の動線も良くリビング収納もあるので、散らかりやすいリビングも片付けに困りません。

    KITCHEN

     キッチン横に、大容量の収納可能なパントリーがあります。食品は日が当たらない方へストック系は見える収納へ。

     こだわりのキッチンがここにあります。アーチの壁も家事をしながらテンションUP。タッチレス水栓や食洗器など時短、家事ラクの工夫も必見。

    BED ROOM

     壁一面に収納を作りました。ご夫婦で分けても、ビジネスとプライベートで分けても、季節で分けても使い方は自由。引き戸は静かになるソフトモーションを採用しました。お子さんが指を挟んでしまう心配も減らせます。

    WASH ROOM
    ×
    LAUNDRY ROOM

     洗面所から独立させることによって来客時も使いやすくプライバシーに配慮しました。家族の入浴時も気にせず使用できます。

     1階にあるランドリールームは洗濯機からも近いので移動距離が短く、家事の負担を軽減できます。洗濯物も時間帯や天気を気にせず干せて花粉や虫も心配ありません。

    BED ROOM

     大容量のウォークインクローゼットには、洋服はもちろん季節物を閉まっておくのにも重宝します。

    TOILET

     掃除用具や芳香剤などしまっておける収納付き。フチがないことでお掃除しやすいフチレストイレです。汚れが拭き取りやすく、傷にも強いウッドワンの床を使っています。

    ENTRANCE

     『いってきます!』『ただいま!』大切な家族が毎日通る玄関。家の顔でもあるので、明るく。使いやすく。いつでも整理整頓しやすい土間収納作りました。

     DIYでカーテンを作る予定なので、来客時にはサッと隠せるようにします。

PLAN

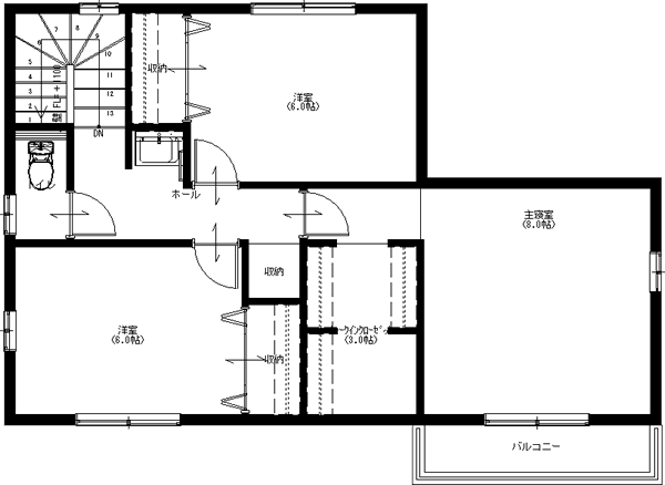
    • 1F
    • 2F

ACCESS

    住所:嵐山町川島2331-5
    ※カーナビで「嵐山町川島2331」を設定してください。
    営業時間 10:00~17:00(見学は完全予約制です)

15,000円分の
クオカード
プレゼント

※見学会会場で5,000円+家づくり相談5,000円+次回来場時5,000円

モデルハウス見学予約フォーム

    必要事項をご記入の上、「送信」ボタンを押してください。
    見学するモデルハウス
    嵐山町川島モデルハウス
    住所
    嵐山町川島2331-5
    見学予約特別プレゼント
    15,000円分のクオカード
    必須ご希望の日時
    第1希望 
    第2希望 
    ※ご希望の日時に直接モデルハウスにお越しください
    必須お名前
    必須Eメール
    必須電話番号
    任意お問い合わせ内容

お電話での予約はこちら

0493-62-3696